© PLANT – Atelier Peter Kis . Pubblicata il 20 Dicembre 2010.
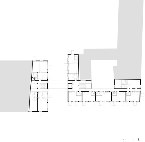
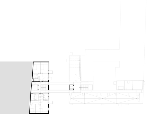
Organization of inner spaces
© PLANT – Atelier Peter Kis . Pubblicata il 20 Dicembre 2010.
A clear and uncomplicated longitudinal zone connects all the functions (apartments, parking, public spaces). This zone and the developed structural system allows the fexibility that appears in the organization of the functions, particularly in the layout of the apartments.
© PLANT – Atelier Peter Kis . Pubblicata il 20 Dicembre 2010.
Sustainability and efficiency
© PLANT – Atelier Peter Kis . Pubblicata il 20 Dicembre 2010.
Besides using contemporary building methods, we focused on the sustainability of the building by using durable and persistent materials. The building suggests elegance and balance by it’s proportion, scale and inner spaces, while it is functionally organized, frugal. The cost estimation and the consturction plan was continuously controlled during the design procedure.
© PLANT – Atelier Peter Kis . Pubblicata il 20 Dicembre 2010.
Written by Péter Kis
© PLANT – Atelier Peter Kis . Pubblicata il 20 Dicembre 2010.












Sem comentários:
Enviar um comentário